Immobili in vendita
Nel cuore di Busca, in posizione comoda e ben servita, proponiamo in vendita 5 unità di nuova generazione, in fase di realizzazione/prossima ultimazione, progettate per offrire il massimo del comfort e della qualità abitativa.
Gli immobili si distinguono per le sue finiture di pregio e l'elevata efficienza energetica, garantita dalla classe A, che assicura bassi consumi e rispetto per l’ambiente.
Una soluzione pensata per chi cerca design, efficienza e qualità, senza compromessi.
Appartamento 1
APPARTAMENTO IN RISTRUTTURAZIONE DI PROSSIMA CONSEGNA, DISPOSTO SU UN PIANO E CLASSIFICATO IN CLASSE ENERGETICA A.
L’IMMOBILE È DOTATO DI PAVIMENTAZIONE IN GRES CERAMICO, SISTEMA WMC PER IL RICIRCOLO DELL'ARIA, SERRAMENTI ESTERNI AD ALTE PRESTAZIONI, GIARDINO PRIVATO E POSTO AUTO DEDICATO, POSSIBILITA' DI USUFRUIRE DELLA DETRAZIONE FISCALE
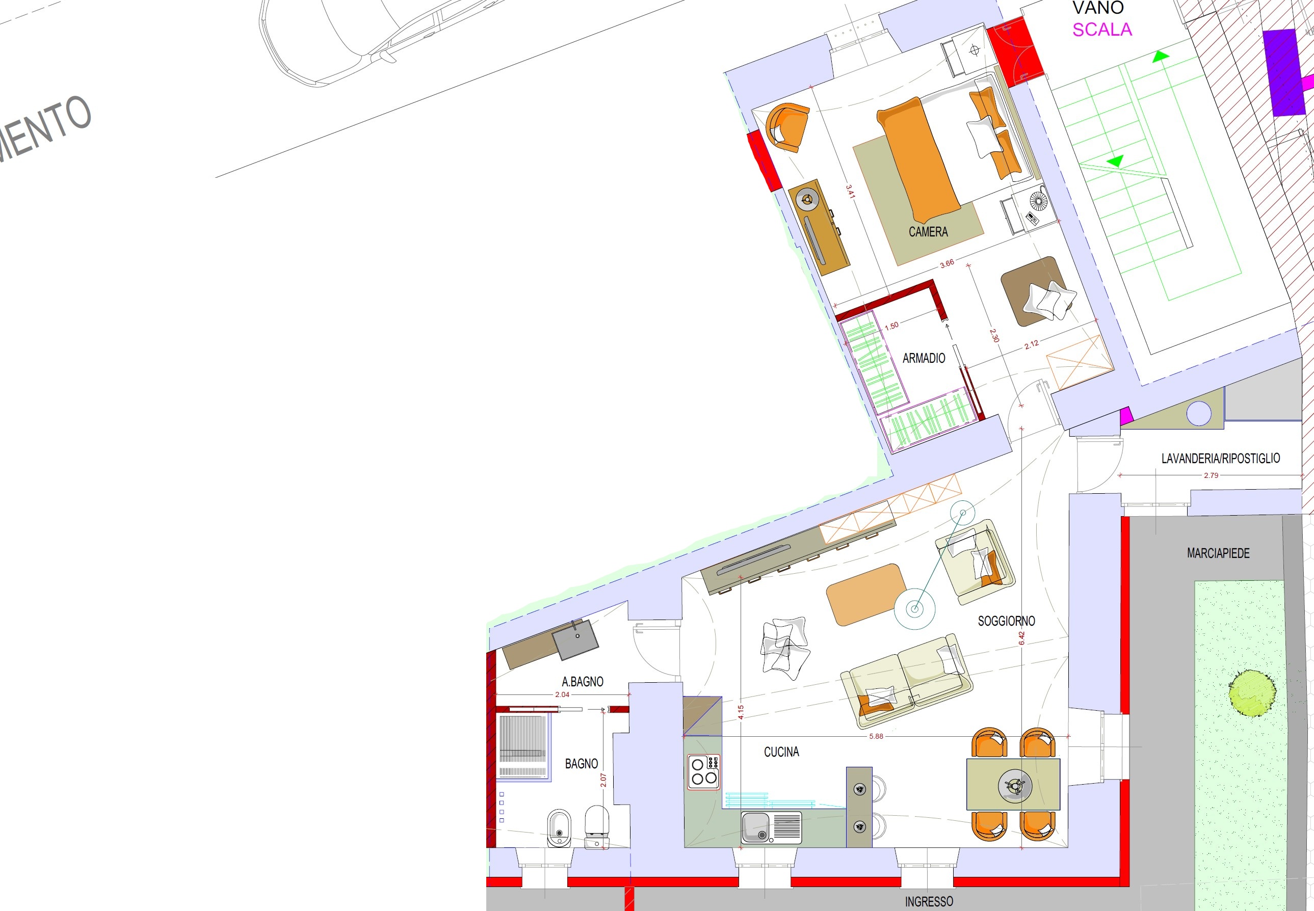
Superficie: 93 m²
Area esterna-Giardino: 30 m²
Locali: Living Cucina-Soggiorno, Bagno, Camera (possibilità di cabina armadio), disimpegno, Cantina
Posto auto privato
Ventilazione meccanica puntuale
Riscaldamento a radiatori
Classe energetica A
Appartamento 2
APPARTAMENTO IN RISTRUTTURAZIONE DI PROSSIMA CONSEGNA, DISPOSTO SU UN PIANO E CLASSIFICATO IN CLASSE ENERGETICA A.
L’IMMOBILE È DOTATO DI PAVIMENTAZIONE IN GRES CERAMICO, SISTEMA WMC PER IL RICIRCOLO DELL'ARIA, SERRAMENTI ESTERNI AD ALTE PRESTAZIONI, GIARDINO PRIVATO E POSTO AUTO DEDICATO, POSSIBILITA' DI USUFRUIRE DELLA DETRAZIONE FISCALE
Superficie: 90 m²
Area esterna-Giardino: 40 m²
Locali: Living Cucina-Soggiorno, Bagno, Lavanderia, Camera (possibilità di cabina armadio), Disimpegno, Cantina
Posto auto privato
Ventilazione meccanica puntuale
Riscaldamento a radiatori
Classe energetica A
Appartamento 3
APPARTAMENTO IN RISTRUTTURAZIONE DI PROSSIMA CONSEGNA, DISPOSTO SU UN PIANO E CLASSIFICATO IN CLASSE ENERGETICA A.
L’IMMOBILE È DOTATO DI PAVIMENTAZIONE IN GRES CERAMICO, SISTEMA WMC PER IL RICIRCOLO DELL'ARIA, SERRAMENTI ESTERNI AD ALTE PRESTAZIONI AMPIO BALCONE E POSTO AUTO DEDICATO, POSSIBILITA' DI USUFRUIRE DELLA DETRAZIONE FISCALE
Superficie: 103 m²
Locali: Living Cucina-Soggiorno, Balconi, Bagno,2 Camere , Disimpegno, Cantina
Posto auto privato
Ventilazione meccanica puntuale
Riscaldamento a pavimento
Classe energetica A
Attico
ATTICO IN RISTRUTTURAZIONE DI PROSSIMA CONSEGNA, DISPOSTO SU UN PIANO E CLASSIFICATO IN CLASSE ENERGETICA A.
L’IMMOBILE È DOTATO DI PAVIMENTAZIONE IN GRES CERAMICO, SISTEMA WMC PER IL RICIRCOLO DELL'ARIA, SERRAMENTI ESTERNI AD ALTE PRESTAZIONI AMPI TERRAZZO E BALCONE E POSTO AUTO DEDICATO, POSSIBILITA' DI USUFRUIRE DELLA DETRAZIONE FISCALE
Superficie: 140 m²
Locali: Living Cucina-Soggiorno, Terrazza, Balconi,2 Bagni,2 Camere , Disimpegno, Cantina
Posto auto privato
Ventilazione meccanica puntuale
Riscaldamento a pavimento
Classe energetica A






